Raritan Commons

200 Route 31 North, Flemington, NJ 08822

Raritan Commons’ highly visible Flemington location in the heart of Hunterdon County provides medical and office space for rent. It offers the perfect opportunity to have a fresh start for a new venture or an established business. Located on the northbound lane of Route 31 across from the Hunterdon Medical Center, Raritan Commons is easily accessible from Routes 22, 28, 31, 202 and 206 and Interstates 78 and 287, with a convenient traffic light-controlled entrance.

This two-story 67,040 sf (+/-) building features a brick façade with full-perimeter windows. The elegant entrance with curved archway leads to a professionally decorated lobby with two passenger elevators, providing easy access to each level.

Contact us to learn more about our office and medical space for lease at Raritan Commons. Questions about applying for a commercial space? Check out our frequently asked questions.

To
available suites
Floor plan
Unit / Type
Suite 115 / Office/Medical
Sf (+/-)
2031 sf
occupancy
Immediate
Floor plan
Unit / Type
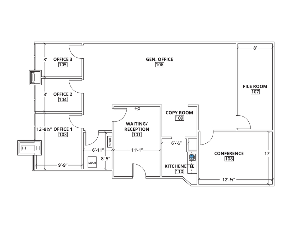
Suite 103 / Office/Medical
Sf (+/-)
3384 sf
occupancy
Immediate
Floor plan
Unit / Type
Suite 210 / Office/Medical
Sf (+/-)
2112 sf
occupancy
Immediate
  • Built to suit, custom designed office space
  • Two-story 67,040 sf (+/-) brick facade with accent quoins and full perimeter windows
  • Elegant entrance with curved archway leads to a professionally decorated lobby
  • Two passenger elevators for easy access to each level
  • Optional private bathrooms and kitchenettes available for each suite
  • 336 Parking spaces available on-site with handicap accessibility
  • Close proximity to hotels, restaurants, banking and entertainment
  • Easily accessible from Routes 22, 28, 31, 202, 206, Interstates 78 and 287
CORPORATE OFFICE HOURS
Monday - Friday
8:00AM - 5:00PM
Saturday - Sunday
Closed

Please click the checkbox and submit to continue.

Raritan Commons brochures

Raritan Commons’ highly visible Flemington location in the heart of Hunterdon County provides medical and office tenants the perfect opportunity to have a fresh start for a new venture or an established business. Raritan Commons is easily accessible from Routes 22, 28, 31, 202 and 206 and Interstates 78 and 287, with a convenient traffic light-controlled entrance.